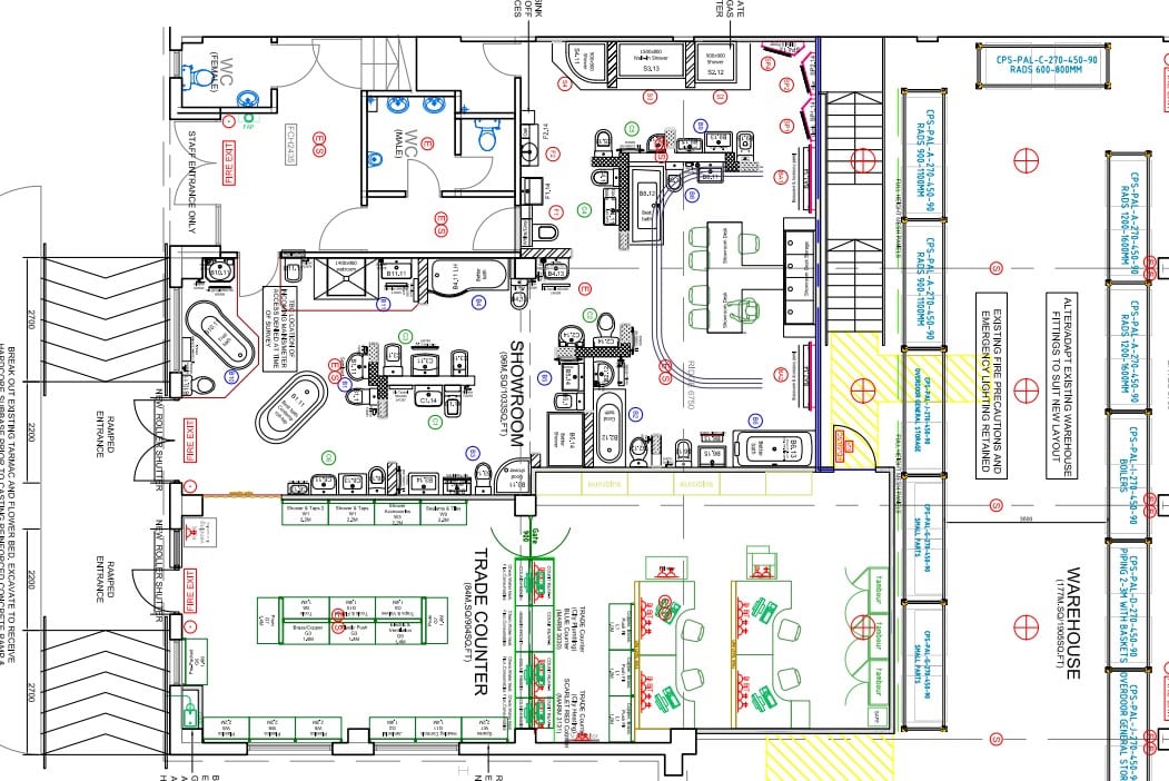
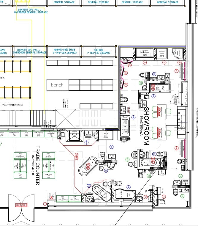
We have a long history working with the team at CPS, dating back to 2015 where we were engaged to deliver 390 refurbishments to their current locations as part of their ‘Build the Best’ programme where they wanted to be the biggest chain of bathroom showrooms in the UK, and they did it… in less than 2 years, with a little help from us at Ampersand of course.
All hands to the pump where we mobilised our teams to pick up 390 surveys. Projects designed & projects delivered in every part of the country. We also carry out various planning submissions, space planning, other technical drawings and anything else we are asked to do.

